Краснодарский край, Сочи, Хостинский, Кудепста м-н
Описание квартиры в "ЖК Лестория"
Продается 2-комнатная квартира в востребованном жилом комплексе "ЖК Лестория" 🏢.
Квартира расположена на 1-м этаже 18-этажного дома.
Прекрасный выбор для инвестиций.
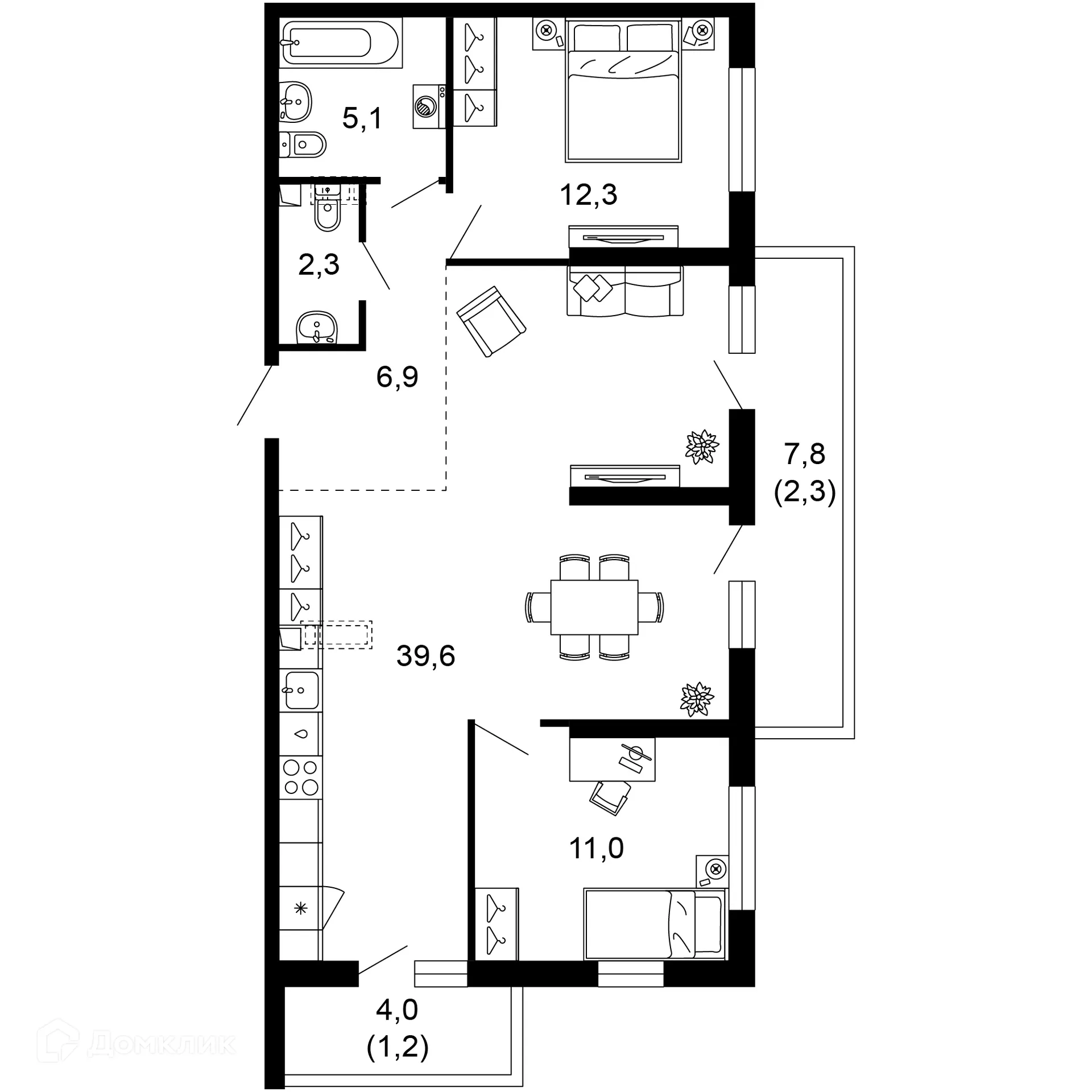
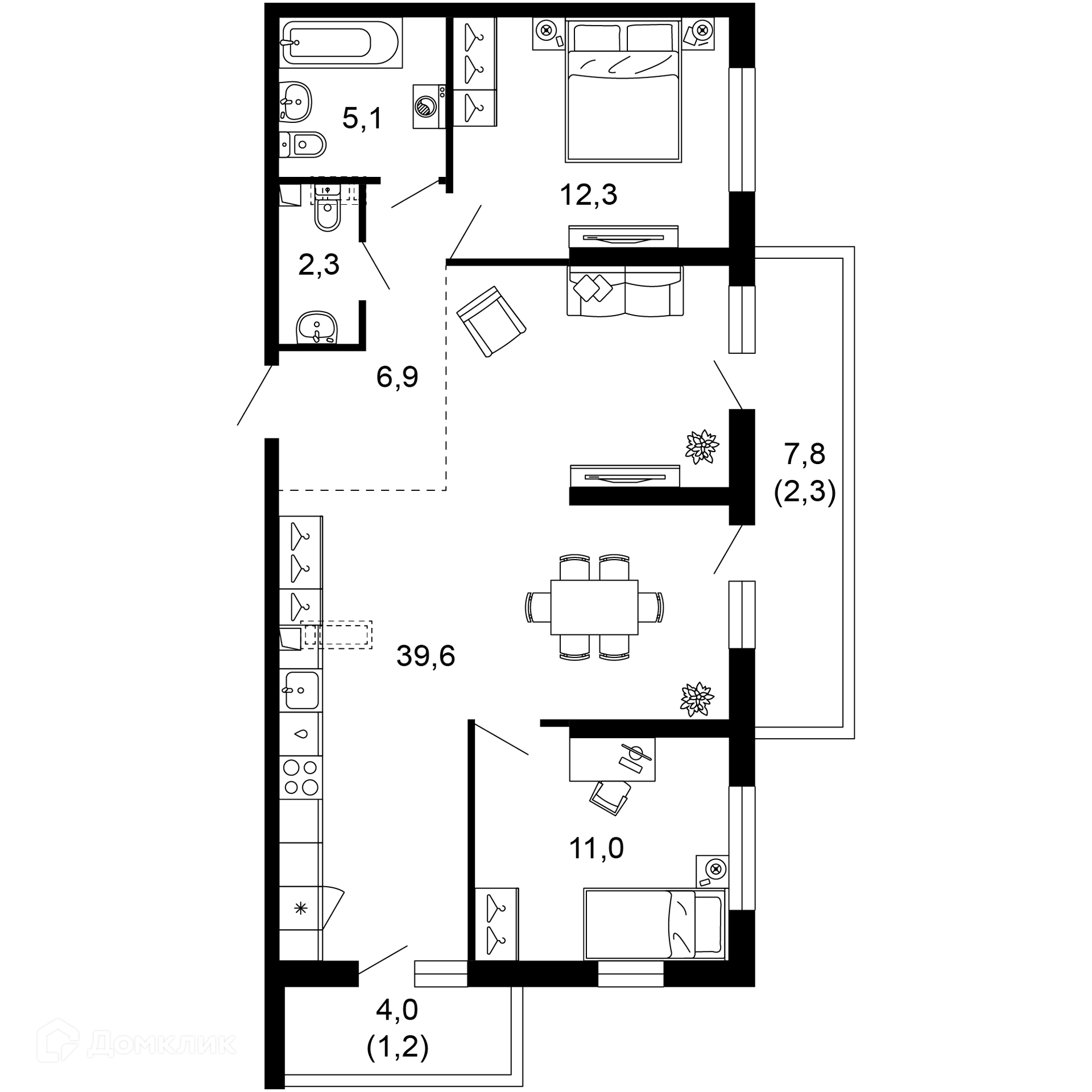
Функциональная планировка
- ✅ Общая площадь: 80.7 м².
- ✅ Светлая жилая площадь: 23.3 м².
- ✅ Кухня: 39.6 м² — идеальна для семейных ужинов.
Преимущества квартиры
- 🔧 Вариант отделки: без ремонта. Это позволит вам сразу приступить к ремонту.
- 🌞 Панорамное остекление наполняют помещения природным светом.
- 🌿 Класс жилья: Комфорт — современные технологии.
Финансы и ипотека
- 💳 Ипотека от 200 196 руб/мес.
- 🏦 Подходит под семейную и IT ипотеку.
- 🤝 Эскроу-счета гарантирует надежность.
Чтобы узнать подробности и проверить актуальную стоимость — свяжитесь с нами прямо сейчас! 📞
Характеристики новостройки в ЖК Лестория
- Номер квартиры: 93
- Вариант отделки: без ремонта
- Общая площадь: 80.7 м²
- Жилая площадь: 23.3 м²
- Площадь кухни: 39.6 м²
- Класс жилья: Комфорт
- Количество комнат: 2-комнатная квартира
- Этаж: 1
- Этажность дома: 18
Полезная информация о ЖК Лестория