Краснодарский край, Сочи, Хостинский, Кудепста м-н
Описание квартиры в "ЖК Лестория"
Продается 1-комнатная квартира в современном жилом комплексе "ЖК Лестория" 🏢.
Квартира расположена на 2-м этаже 18-этажного дома.
Прекрасный выбор для семьи.
Функциональная планировка
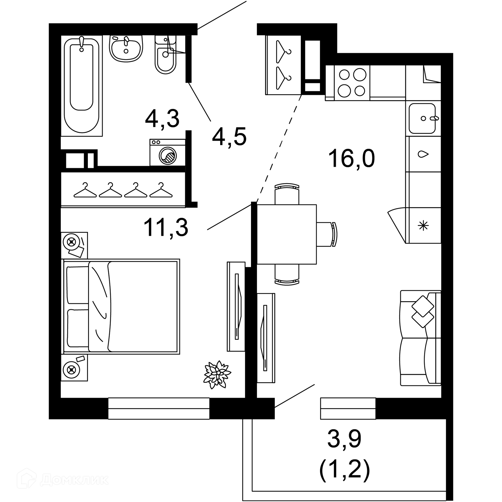
- ✅ Общая площадь: 37.3 м².
- ✅ Светлая жилая площадь: 11.3 м².
- ✅ Кухня: 16 м² — идеальна для семейных ужинов.
Преимущества квартиры
- 🔧 Вариант отделки: без ремонта. Это позволит вам сразу приступить к ремонту.
- 🌞 Увеличенные оконные проемы наполняют помещения природным светом.
- 🌿 Класс жилья: Комфорт — благоустроенная территория.
Выгодные условия покупки
- 💳 Ипотека от 113 375 руб/мес.
- 🏦 Подходит под семейную и IT ипотеку.
- 🤝 Покупка напрямую от застройщика гарантирует надежность.
Чтобы узнать подробности и зафиксировать цену — свяжитесь с нами прямо сейчас! 📞
Характеристики новостройки в ЖК Лестория
- Номер квартиры: 94
- Вариант отделки: без ремонта
- Общая площадь: 37.3 м²
- Жилая площадь: 11.3 м²
- Площадь кухни: 16 м²
- Класс жилья: Комфорт
- Количество комнат: 1-комнатная квартира
- Этаж: 2
- Этажность дома: 18
Полезная информация о ЖК Лестория