Краснодарский край, Сочи, Хостинский, Кудепста м-н
Обзор квартиры в "ЖК Лестория"
Предлагается 1-комнатная квартира в современном жилом комплексе "ЖК Лестория" 🏢.
Квартира расположена на 2-м этаже 18-этажного дома.
Прекрасный выбор для инвестиций.
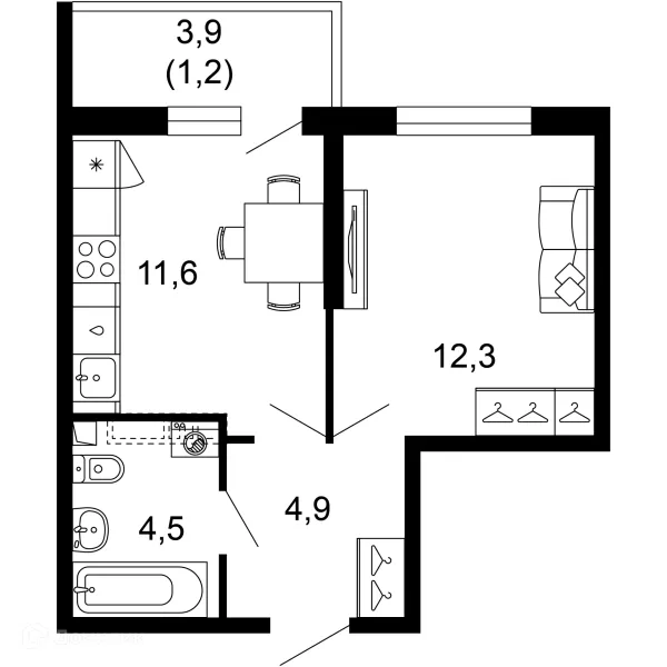
Функциональная планировка
- ✅ Общая площадь: 36.8 м².
- ✅ Уютная жилая площадь: 16.4 м².
- ✅ Кухня: 10.8 м² — место для кулинарных шедевров.
Особенности квартиры
- 🔧 Вариант отделки: чистовая отделка. Готовая база для вашего интерьера.
- 🌞 Большие окна наполняют помещения естественным светом.
- 🌿 Класс жилья: Комфорт — высокое качество строительства.
Выгодные условия покупки
- 💳 Ипотека от 130 272 руб/мес.
- 🏦 Доступны льготные программы господдержки.
- 🤝 Безопасная сделка гарантирует спокойствие.
Чтобы забронировать эту квартиру бесплатно и зафиксировать цену — позвоните нам прямо сейчас! 📞
Характеристики новостройки в ЖК Лестория
- Номер квартиры: 325
- Вариант отделки: чистовая отделка
- Общая площадь: 36.8 м²
- Жилая площадь: 16.4 м²
- Площадь кухни: 10.8 м²
- Класс жилья: Комфорт
- Количество комнат: 1-комнатная квартира
- Этаж: 2
- Этажность дома: 18
Полезная информация о ЖК Лестория