Краснодарский край, Сочи, Хостинский, Кудепста м-н
Описание квартиры в "ЖК Лестория"
В продаже 1-комнатная квартира в востребованном жилом комплексе "ЖК Лестория" 🏢.
Квартира расположена на 8-м этаже 18-этажного дома.
Отличный вариант для комфортной жизни.
Продуманная планировка
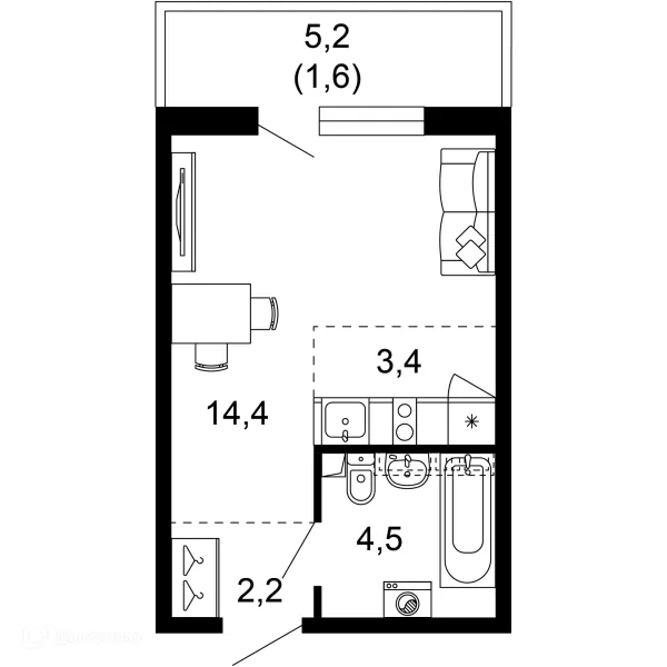
- ✅ Общая площадь: 34.1 м².
- ✅ Просторная жилая площадь: 10.6 м².
- ✅ Кухня: 10.1 м² — идеальна для семейных ужинов.
Преимущества квартиры
- 🔧 Вариант отделки: чистовая отделка. Минимум грязных работ.
- 🌞 Увеличенные оконные проемы наполняют помещения природным светом.
- 🌿 Класс жилья: Комфорт — современные технологии.
Финансы и ипотека
- 💳 Ипотека от 124 275 руб/мес.
- 🏦 Доступны льготные программы господдержки.
- 🤝 Эскроу-счета гарантирует надежность.
Для бесплатного бронирования и проверить актуальную стоимость — позвоните нам прямо сейчас! 📞
Характеристики новостройки в ЖК Лестория
- Номер квартиры: 205
- Вариант отделки: чистовая отделка
- Общая площадь: 34.1 м²
- Жилая площадь: 10.6 м²
- Площадь кухни: 10.1 м²
- Класс жилья: Комфорт
- Количество комнат: 1-комнатная квартира
- Этаж: 8
- Этажность дома: 18
Полезная информация о ЖК Лестория