Краснодарский край, Сочи, Хостинский, Кудепста м-н
Описание квартиры в "ЖК Лестория"
Доступна к покупке 1-комнатная квартира в новом жилом комплексе "ЖК Лестория" 🏢.
Квартира расположена на 2-м этаже 18-этажного дома.
Прекрасный выбор для инвестиций.
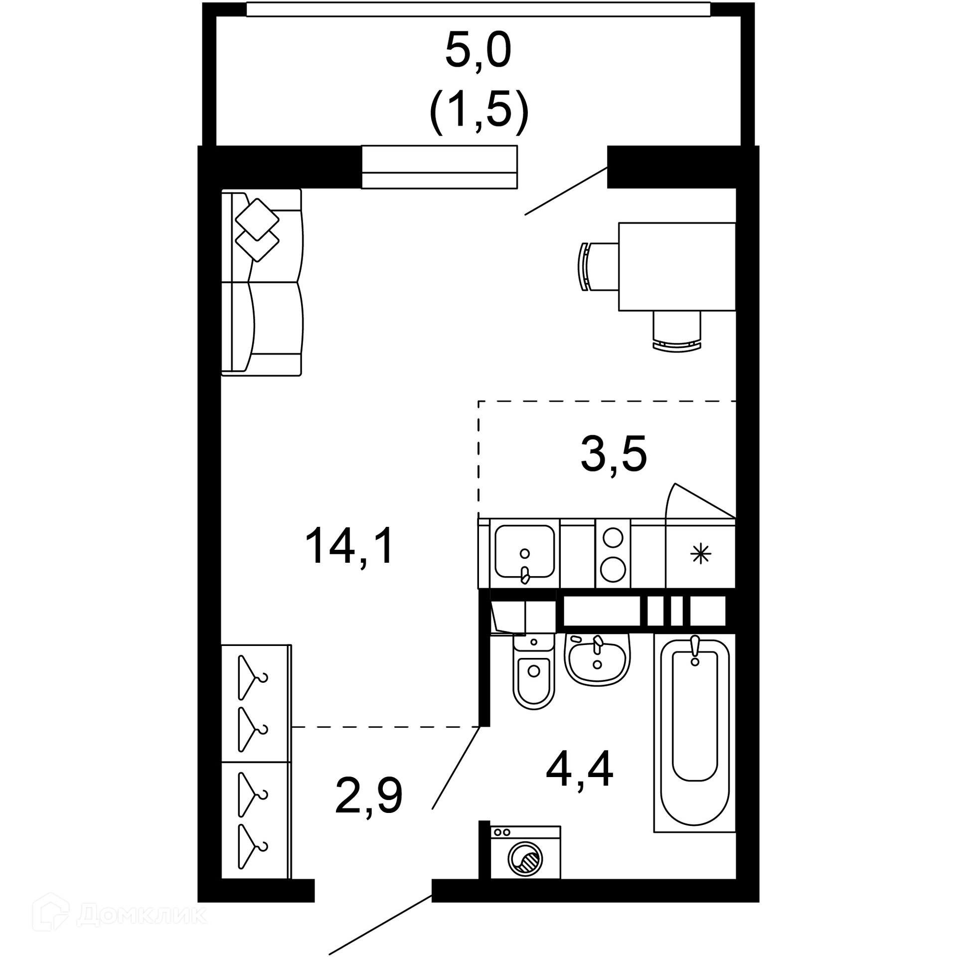
Функциональная планировка
- ✅ Общая площадь: 26.4 м².
- ✅ Просторная жилая площадь: 14.1 м².
- ✅ Кухня: 3.5 м² — место для кулинарных шедевров.
Особенности квартиры
- 🔧 Вариант отделки: чистовая отделка. Минимум грязных работ.
- 🌞 Увеличенные оконные проемы наполняют помещения природным светом.
- 🌿 Класс жилья: Комфорт — высокое качество строительства.
Выгодные условия покупки
- 💳 Ипотека от 108 246 руб/мес.
- 🏦 Доступны льготные программы господдержки.
- 🤝 Безопасная сделка гарантирует надежность.
Для бесплатного бронирования и зафиксировать цену — свяжитесь с нами прямо сейчас! 📞
Характеристики новостройки в ЖК Лестория
- Номер квартиры: 185
- Вариант отделки: чистовая отделка
- Общая площадь: 26.4 м²
- Жилая площадь: 14.1 м²
- Площадь кухни: 3.5 м²
- Класс жилья: Комфорт
- Количество комнат: 1-комнатная квартира
- Этаж: 2
- Этажность дома: 18
Полезная информация о ЖК Лестория