Краснодарский край, Сочи, Хостинский, Кудепста м-н
Описание квартиры в "ЖК Лестория"
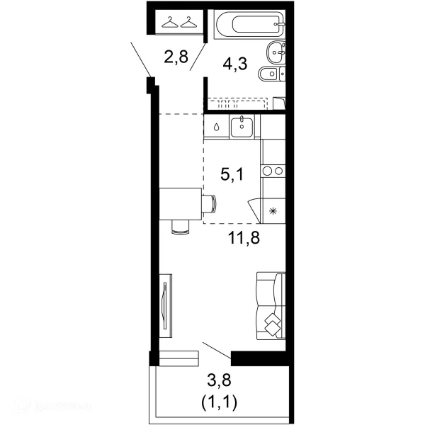
Предлагается 1-комнатная квартира в современном жилом комплексе "ЖК Лестория" 🏢.
Квартира расположена на 6-м этаже 18-этажного дома.
Прекрасный выбор для семьи.
Удобная планировка
- ✅ Общая площадь: 37 м².
- ✅ Уютная жилая площадь: 10.3 м².
- ✅ Кухня: 16.8 м² — идеальна для семейных ужинов.
Особенности квартиры
- 🔧 Вариант отделки: чистовая отделка. Это позволит вам сразу приступить к ремонту.
- 🌞 Увеличенные оконные проемы наполняют помещения естественным светом.
- 🌿 Класс жилья: Комфорт — высокое качество строительства.
Финансы и ипотека
- 💳 Ипотека от 146 780 руб/мес.
- 🏦 Подходит под семейную и IT ипотеку.
- 🤝 Покупка напрямую от застройщика гарантирует спокойствие.
Чтобы узнать подробности и зафиксировать цену — свяжитесь с нами прямо сейчас! 📞
Характеристики новостройки в ЖК Лестория
- Номер квартиры: 58
- Вариант отделки: чистовая отделка
- Общая площадь: 37 м²
- Жилая площадь: 10.3 м²
- Площадь кухни: 16.8 м²
- Класс жилья: Комфорт
- Количество комнат: 1-комнатная квартира
- Этаж: 6
- Этажность дома: 18
Полезная информация о ЖК Лестория