Краснодар, Кудухова, 1 к1
Площадь
Жилая
Кухня
Отделка
Класс жилья
Комнат
Номер кв.
Этаж
В продаже 3-комнатная квартира в востребованном жилом комплексе "ЖК Друзья" 🏢
Квартира расположена на 2-м этаже 10-этажного дома.
Отличный вариант для комфортной жизни.
Удобная планировка: 📐
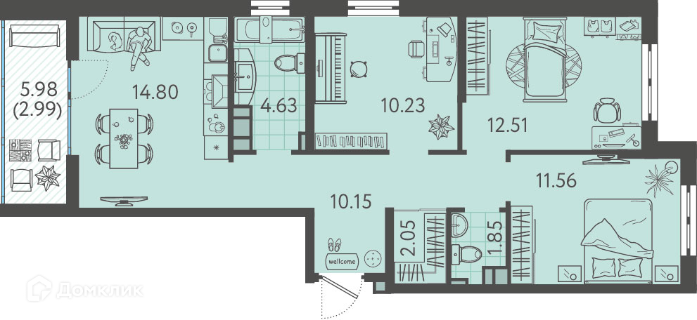
✅ Общая площадь: 71 м².
✅ Светлая жилая площадь: 34.3 м².
✅ Кухня: 14.8 м² — идеальна для семейных ужинов.
Особенности квартиры: ✨
🔧 Вариант отделки: предварительная отделка. Готовая база для вашего интерьера.
🌞 Увеличенные оконные проемы наполняют помещения естественным светом.
🌿 Класс жилья: Комфорт — современные технологии.
Финансы и ипотека: 💰
💳 Ипотека от 69 021 руб/мес.
🏦 Доступны льготные программы господдержки.
🤝 Эскроу-счета гарантирует спокойствие.
Чтобы узнать подробности и зафиксировать цену — свяжитесь с нами прямо сейчас! 📞
Параметры новостройки в ЖК Друзья:
• Номер квартиры - 2
• Вариант отделки - предварительная отделка
• Площадь - 71 м²
• Жилая Жилая - 34.3 м²
• Площадь кухни - 14.8 м²
• Класс жилья - Комфорт
• Комнат - 3-комнатная квартира
• Этаж - 2
• Дом - 10-этажный
Полезная информация о ЖК Друзья
ЖК «Друзья» находится в развитом районе: в окружении семь супермаркетов, два гипермаркета, шесть детских садов, три парка, остановки общественного транспорта. Также в микрорайоне предусмотрена собственная социальная инфраструктура: новая школа на 1550 мест и детский сад на 240 мест, который возводит СК «Семья». По информации Администрации Краснодара, в 2022 году начнутся работы по строительству новой трамвайной ветки, которая соединит ул. Западный обход с другими районами города.
Первая очередь ЖК «Друзья» включает в себя два девятиэтажных литера на 720 квартир и 720 машиномест, которые будут расположены на наземном и многоуровневом паркинге. На первом этаже расположатся кафе, магазины, заведения для досуга и образования. Для самых маленьких жителей комплекса на первом этаже будет работать детская игровая комната, а для детей постарше – хобби-рум. Посещать добрососедские локации жители смогут бесплатно.
В ЖК «Друзья» – тихие и безопасные дворы без машин, в которых можно спокойно гулять и не бояться за ребенка. Пространство спроектировано таким образом, чтобы все поколения жителей нашли для себя уютный уголок. Обилие зелени и деревьев располагает к пребыванию на свежем воздухе, к тому же локации для спорта и активных игр расположены в стороне от зон отдыха. Для детей предусмотрены современные игровые комплексы, качели, площадка для командных игр, для родителей – беседки, лавочки, велодорожки.
Фасад дома отличается стильным и лаконичным обликом с панорамным остеклением балконов и лоджий. Все окна – энергосберегающие, помогают сохранить тепло в квартирах зимой и не дают зною проникнуть внутрь летом. Планировки квартир тщательно продуманы, в них легко сделать перестановку благодаря правильной эргономике помещений. Во всех квартирах ширина комнат свыше 3 м., площадь санузлов – от 4 кв.м, глубина балконов и лоджий – 1,5 м. Квартиры сдаются в предчистовой отделке «white box», которая позволяет сразу перейти к чистовому ремонту – установлены радиаторы, входная дверь, проведена разводка электричества до розеток и выключателей, стены оштукатурены, выполнена шумоизоляция пола.
Строительство ЖК «Друзья» ведется согласно 214-ФЗ, сдача первой очереди запланирована на 3 квартал 2024 года. Дольщики могут быть спокойны за свои средства: оплата за квартиру вносится на эскроу-счет в банке «ДОМ.РФ», где деньги хранятся до завершения строительства и ввода домов в эксплуатацию.
Срок сдачи: 3 кв. 2024 г.
Срок сдачи: 3 кв. 2024 г.
Площади квартир
Этажность
Отделка
Класс жилья
Количество корпусов
Тип стен