Краснодар, Фестивальный м-н, Пост охраны
Площадь
Жилая
Кухня
Отделка
Класс жилья
Комнат
Номер кв.
Этаж
Доступна к покупке 2-комнатная квартира в современном жилом комплексе "ЖК ЕКАТЕРИНИНСКИЙ ПАРК" 🏢
Квартира расположена на 1-м этаже 17-этажного дома.
Отличный вариант для инвестиций.
Функциональная планировка: 📐
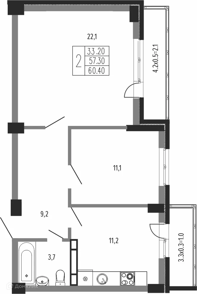
✅ Общая площадь: 61.86 м².
✅ Светлая жилая площадь: 33.2 м².
✅ Кухня: - м² — идеальна для семейных ужинов.
Особенности квартиры: ✨
🔧 Вариант отделки: без ремонта. Готовая база для вашего интерьера.
🌞 Панорамное остекление наполняют помещения естественным светом.
🌿 Класс жилья: Комфорт — высокое качество строительства.
Финансы и ипотека: 💰
💳 Ипотека от 100 227 руб/мес.
🏦 Подходит под семейную и IT ипотеку.
🤝 Безопасная сделка гарантирует спокойствие.
Чтобы забронировать эту квартиру бесплатно и зафиксировать цену — позвоните нам прямо сейчас! 📞
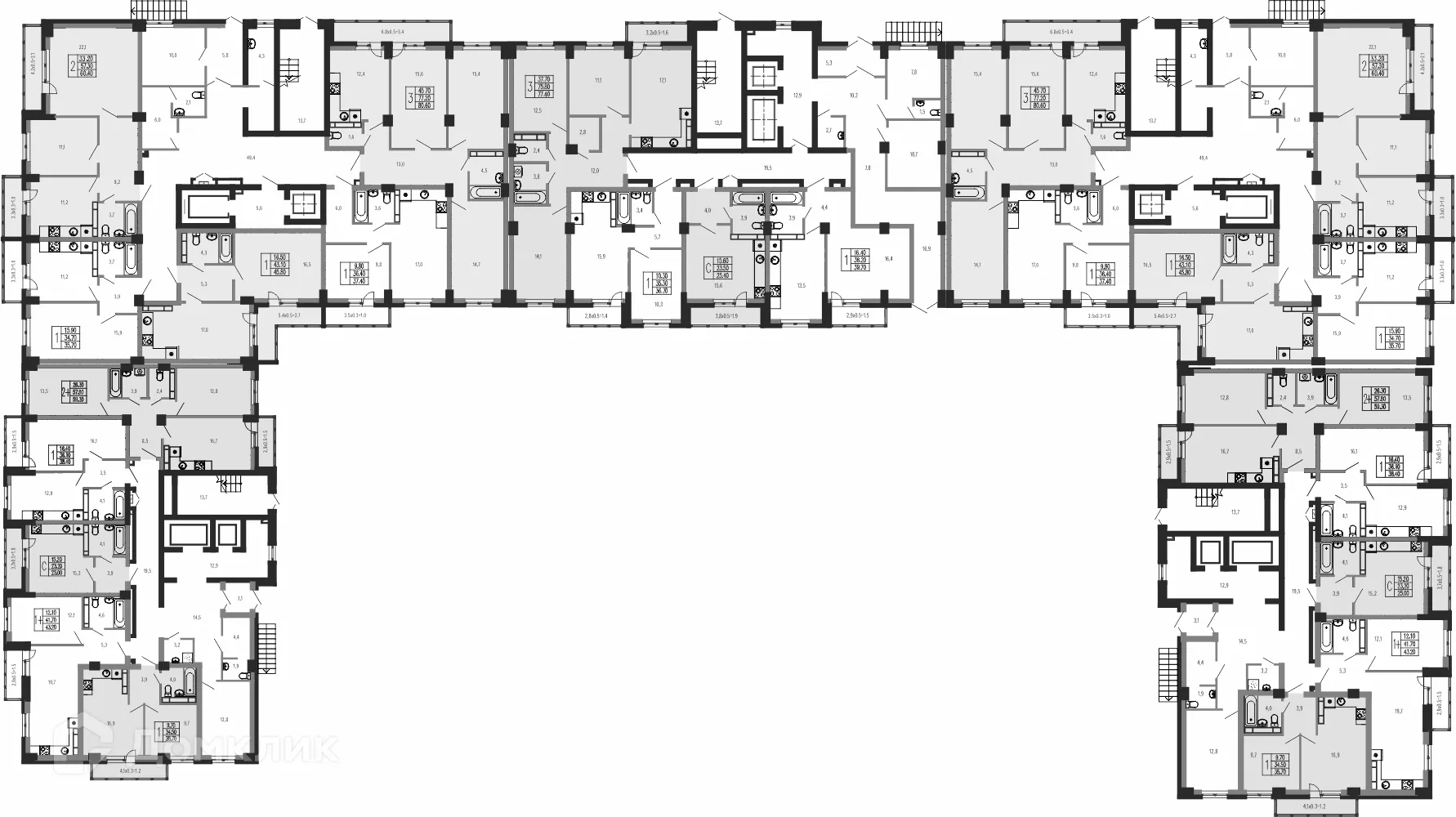
Параметры новостройки в ЖК ЕКАТЕРИНИНСКИЙ ПАРК:
• Номер квартиры - 253
• Вариант отделки - без ремонта
• Площадь - 61.86 м²
• Жилая Жилая - 33.2 м²
• Площадь кухни - - м²
• Класс жилья - Комфорт
• Комнат - 2-комнатная квартира
• Этаж - 1
• Дом - 17-этажный
Полезная информация о ЖК ЕКАТЕРИНИНСКИЙ ПАРК
Роскошный проект бизнес-класса от СК «ЕкатеринодарИнвест-Строй», строящийся в Фестивальном микрорайоне Краснодара, рядом с «Полем Чудес».
Авторская, лаконичная архитектура домов воплощена в элегантной баварской кладке из кирпича по технологии клинкер. "&"В окнах будут установлены алюминиевые стеклопакеты Alutech, с профилем антрацитового цвета и эффектом зазеркаливания.
Снаружи дома – впечатляющее пространство двора-парка, с сакурами и павловниями. В комплексе предусмотрена собственная инфраструктура – 2 частных детских сада, отдельный фитнес-центр для резидентов и коммерческая галерея. Территория ЖК безопасна и приватна – закрыта по периметру, оснащена системой видеонаблюдения без «слепых зон», а доступ в подъезд осуществляется через систему видеодомофонов, отпечатком пальца или Face ID.
Срок сдачи: 3 кв. 2024 г.
Срок сдачи: 3 кв. 2024 г.
Площади квартир
Этажность
Отделка
Класс жилья
Количество корпусов
Тип стен